


















AÑO: 2022
UBICACIÓN: Balcarce 542, Rosario (Arg.)
UNIDADES DISPONIBLES:
CASAS
OFICINAS
DEPARTAMENTOS
MEMORIA DESCRIPTIVA:
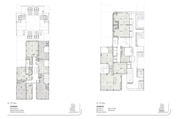
El proyecto se encuentra ubicado en el Área Central de la ciudad de Rosario, a metros de Bv. Oroño, uno de los corredores más importantes de la ciudad. La propuesta de viabilidad patrimonial contempla, en un lote de 21m. de frente y 58.76 de profundo (1234m2 de superficie total) con afectación indirecta (3b - Protección de Entorno, siendo final de tramo), realizar un proyecto siguiendo la normativa de régimen diferencial para lotes mayores a 1000m2, acorde a lo ya actuado en casos precedentes, pero adaptando el basamento a la morfología edilicia de su entorno.
En contacto con la medianera norte, hasta el centro del lote, el proyecto toma la altura del edificio patrimonial (10m). Sobre dicha medianera se plantean una serie de patios que van a copiar la silueta de los patios linderos existentes, para generar un dialogo que garantice la entrada de luz y ventilación, mejorando la condición actual del edifico patrimonial. Hacia el sur, el edificio toma mayor altura (28m), de forma que iguale y revista la medianera del edificio existente, replicando también un patio central existente. Separando estos dos bloques que dan al frente se genera un vacío de múltiple altura que define el ingreso al edificio, remarcando esta diferencia y dando lugar a la aparición de la torre de 54m que se deslinda 7,50 m del frente y 6m de cada lindero hasta el centro de manzana.
Estos puntos determinados por el acuerdo de viabilidad patrimonial definieron una caja contenedora respetando las alturas máximas y los retiros propuestos. Sobre el centro de manzana, respetando la altura máxima de 6m. se propone evolucionar el centro de manzana con una serie de casas individuales en contacto con el suelo, las cuales están dispuestas alrededor de un patio central de 9x9, conformando un claustro de uso común, que dialoga en relación con el ancho de la torre.
Para lograr una continuidad en la masa edilicia se trabajan todos los contactos y articulaciones con geometrías curvas, creando cintas horizontales que enfatizan la idea de un volumen único fluido. Acentuando esta idea de continuidad, la estructura se expresa vista en todas las fachadas, conformando una grilla de hormigón. Los parasoles metálicos de lamas verticales, junto con los muros de ladrillo visto colocados en traba vertical, colaboran también con una imagen de fluidez en todo el perímetro de la volumetría. Estos cerramientos responden a las diferentes orientaciones, siendo muros con tendencia hacia lo opaco en las caras al sur y más trasparentes con parasoles en el resto de las fachadas.
El programa del edificio, determinado por su tamaño y la zona en la que se emplaza, apuesta a la variación tipológica e hibridación programática de usos y propone una interacción entre personas de distintas edades y estilos de vida, dando respuesta a diferentes configuraciones familiares. Para esto se busca un equilibro en las tipologías de viviendas, contando con: Casas de 2 y 3 dormitorios con patios y terrazas exclusivas, departamentos de 1, 2 y 3 dormitorios, y pisos exclusivos de 4 dormitorios. Así mismo, potenciando la diversidad de usos, la planta baja posee, en relación a la calle, un local de uso comercial, y en los primeros 3 pisos se ubican 13 oficinas, de diferentes tamaños y características espaciales.
En el ingreso al edificio se planteó un corredor abierto de accesos, que atraviesa el edificio por el medio, articulando la vereda pública con los usos privados. A lo largo de este recorrido se van incorporando los diferentes ingresos: el acceso al local comercial, el hall de los departamentos en altura, el hall de las oficinas, los accesos a las oficinas de planta baja, terminando en un patio donde se encuentran los ingresos a las casas en contacto con el suelo. En este trayecto se encuentran también los accesos a los 2 subsuelos de cocheras, que cuentan con lugar para 58 autos.
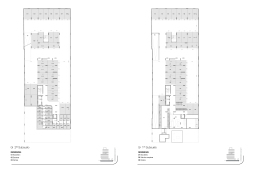
El edificio posee dos sectores de uso común, los cuales responden a diferentes situaciones y usos: Por un lado, el tercer piso, funciona como fuelle entre las oficinas y los departamentos, presenta un sector enfocado a distintas actividades sociales, deportivas y lúdicas, cuenta con dos quinchos, juegos, un sector de coworking y un gimnasio. Por otro lado, otro sector de uso común se encuentra en la terraza de la torre, a 54m de altura, contando con una piscina de desborde infinito y un solárium que se abre en forma panorámica con visuales hacia toda la ciudad.
Finalmente, reforzando la continuidad y fluidez de la masa edilicia, una cinta de luz rodea la torre 360 grados mientras un haz se propaga de forma vertical en el skyline de la ciudad, estimulando la voluntad de crecimiento vertical infinito.